倉敷市福田町古新田 中古住宅
・駐車4台可能
・オール電化
・エコキュート
・トイレ2カ所
・南向き
・日当たり良好!!
- 価格
- 1,850万円
- 物件所在地
- 倉敷市福田町古新田
- 土地面積
- 165.20㎡(49.97坪)
- 建物面積
- 97.71㎡(29.95坪)
- 築年月日
- 平成20年6月
- 建物構造
- 木造2階建
- 接道
- 西5m公道 北6.6m公道
- 上水道
- 公営
- 排水
- 下水道
- 現況
- 居住中 入居日相談
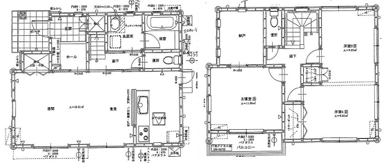
平面図

この物件についてのお問い合わせ
- >メールでお問い合わせの場合
- 不動産・築事業のこと等、ご不明な点などございましたら、 下記のフォームの必要事項を入力し確認ボタンを押してください。 後日、担当からお返事をさせていただきます。お気軽にお問い合わせください。
- >お電話でのお問い合わせの場合
- 下記の電話番号までお電話ください。ホームページを見たとお電話していただくとスムーズです。 資料請求も出来ますので、お気軽にお問い合わせください。

※印は入力必須です。必ずご入力下さい。
- 2025年12月04日
- 岡山市東区城東台東2丁目中古住宅
- 2025年12月04日
- 岡山市東区城東台南2丁目中古住宅
- 2025年12月04日
- 倉敷市庄新町 中古住宅
- 2025年12月03日
- 岡山市北区加茂 中古住宅
- 2025年12月02日
- 岡山市北区庭瀬 新築分譲住宅
- 2025年12月02日
- 岡山市北区庭瀬 新築分譲住宅
- 2025年12月02日
- 岡山市北区庭瀬 新築分譲住宅
- 2025年11月30日
- 南区南区福島2丁目 新築分譲住宅
- 2025年11月30日
- 岡山市北区一宮 新築分譲住宅
- 2025年11月29日
- 加賀郡吉備中央町吉川新築分譲住宅




