玉野市槌ケ原 中古住宅
・オール電化住宅
・駐車3台可能
・アイランドキッチン
・ウォークインクローゼット!!
- 価格
- 3,000万円
- 物件所在地
- 玉野市槌ケ原
- 土地面積
- 198.36㎡(60.00坪)
- 建物面積
- 64.17㎡ (19.41坪)
- 築年月日
- 令和4年7月
- 建物構造
- 木造平屋建
- 接道
- 南5m 接面15.2m
- 上水道
- 公営
- 排水
- 下水道
- 現況
- 所有者居住中
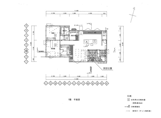
平面図

この物件についてのお問い合わせ
- >メールでお問い合わせの場合
- 不動産・築事業のこと等、ご不明な点などございましたら、 下記のフォームの必要事項を入力し確認ボタンを押してください。 後日、担当からお返事をさせていただきます。お気軽にお問い合わせください。
- >お電話でのお問い合わせの場合
- 下記の電話番号までお電話ください。ホームページを見たとお電話していただくとスムーズです。 資料請求も出来ますので、お気軽にお問い合わせください。

※印は入力必須です。必ずご入力下さい。
- 2026年03月06日
- 岡山市北区上中野2丁目 サーパス上中野 中古マンション
- 2026年03月06日
- 岡山市北区撫川 新築分譲住宅
- 2026年03月04日
- 岡山市東区城東台南2丁目中古住宅
- 2026年03月03日
- 岡山市中区湊 中古住宅
- 2026年03月03日
- 岡山市中区関 中古住宅
- 2026年03月01日
- 倉敷市広江8丁目 中古住宅
- 2026年02月28日
- 総社市久代 中古住宅
- 2026年02月28日
- 赤磐市桜が丘西6丁目 中古住宅
- 2026年02月28日
- 玉野市長尾 中古住宅
- 2026年02月26日
- 岡山市北区上中野2丁目 ライオンズマンション上中野中古マンション




